-
- 賃料
- 12.1万円 ご成約済
- 種別
- 店舗・事務所
- 間取
- 1R
- 共益費・管理費
- 16,500円
- 敷金
- 3ヶ月
- 礼金
- 1ヶ月
-
- 所在地
- 新潟県三条市東三条1丁目
- 交通
- JR信越本線 東三条駅 徒歩400m 徒歩5分
物件詳細
| 築年月 | 1978/10 | 新築/中古 | |
|---|---|---|---|
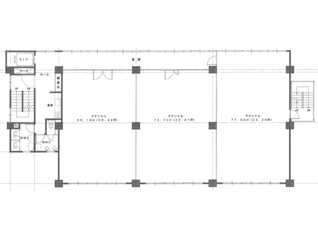
| 面積 | 77.00m² | 計測方式 | |
| バルコニー | 向き | ||
| 建物階数 | 地上7階 | 部屋階数 | 3階 |
| 部屋/区画番号 | 3F A室 | 総戸/区画数 | 9 |
| 建物構造 | RC | ||
| 管理形態 | 自主管理 管理人日勤 | ||
| 間取内容 | |||
| 住宅保険料 | 要 | ||
| 引渡/入居時期 | 現況 | 賃貸中 | |
| 設備・条件 | 給湯 トイレ共同 エアコン 光ファイバー エレベータ 駐車場有 LED照明 |
||
| 駐車場 | 6,600円 空有 来客用フリーゾーン有 (融雪駐車場) |
取引態様 | 貸主 |
| 特記事項 | 保証会社原則加入 (例 初回保証料:月額総賃料の70%・継続保証料/毎年:月額総賃料の10%) 住宅保険料:別途要加入 |
||
| 物件番号 | kw-b1-3-a | ||
| ご成約特典 | お引越しの時はいろいろとごみがでるもの。ごみ袋はすぐに必要ですね。 お住まいの地域指定のごみ袋 をプレゼント! |
||
JR東三条駅近。
地域幹線道路・第一産業道路(旧R289)沿い。
学習塾・習い事教室・出張所・支店などにオススメ!
1F入口に防犯カメラ設置、2Fに管理事務所、AED設置。
テナント専用・お客様共用駐車場拡張。融雪設備完備。
テナント入居実績
- 公証役場
- 弁護士事務所
- 矯正歯科
- 美容室 など
Loading...
※物件掲載内容と現況に相違がある場合は現況を優先と致します。
この物件のお問い合わせ
お電話からのご予約・お問い合わせ
0120-876-199TEL 0256-34-6177
営業時間
月~金/土曜営業日 9:30~17:30
月~金/土曜営業日 9:30~17:30
定休日
土曜(不定)・日曜・祝日
土曜(不定)・日曜・祝日
現地見学・商談等、休日も予約対応いたします。
このサイトは、reCAPTCHA および Google プライバシー ポリシーによって保護され、利用規約が適用されます。
















